OFFICE OF ARCHITECTURE
© 2025 Jean-Yves Dushime
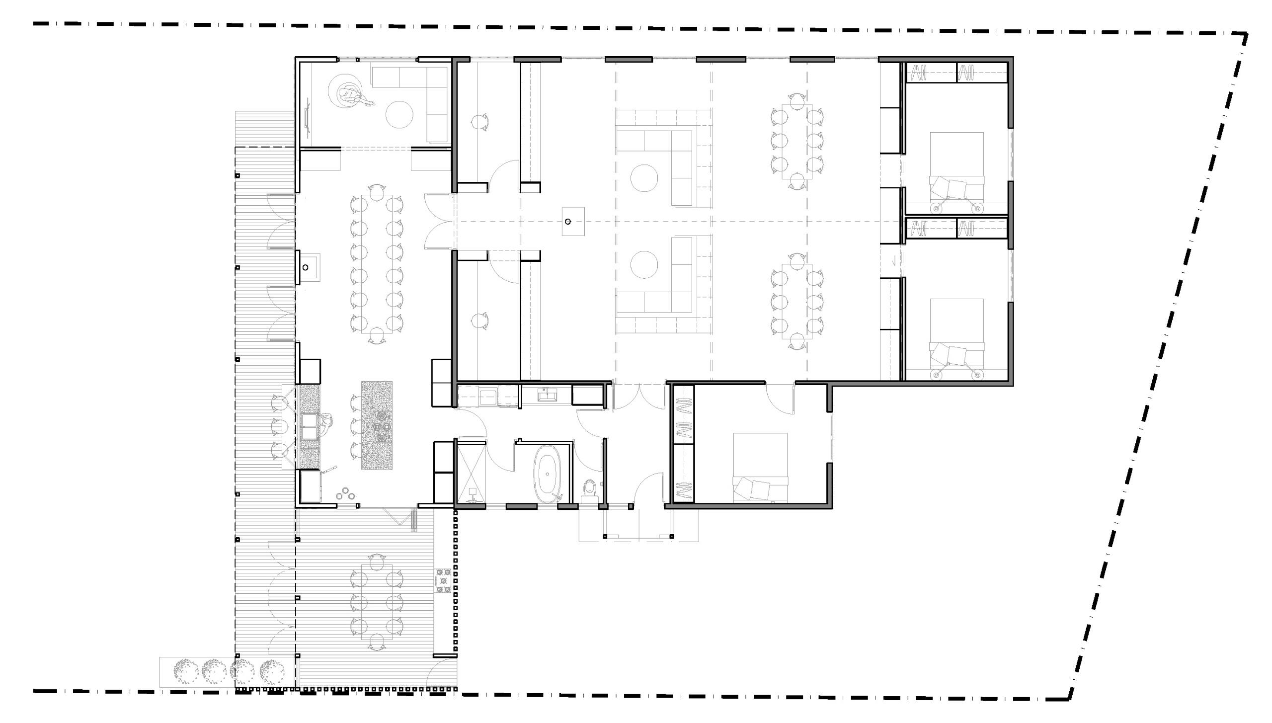
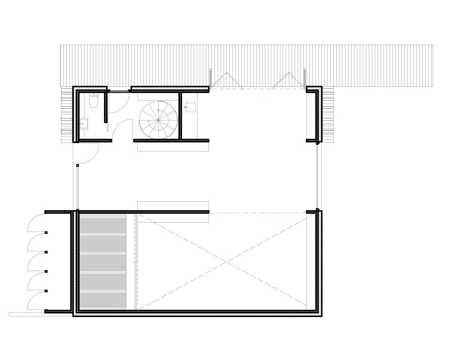
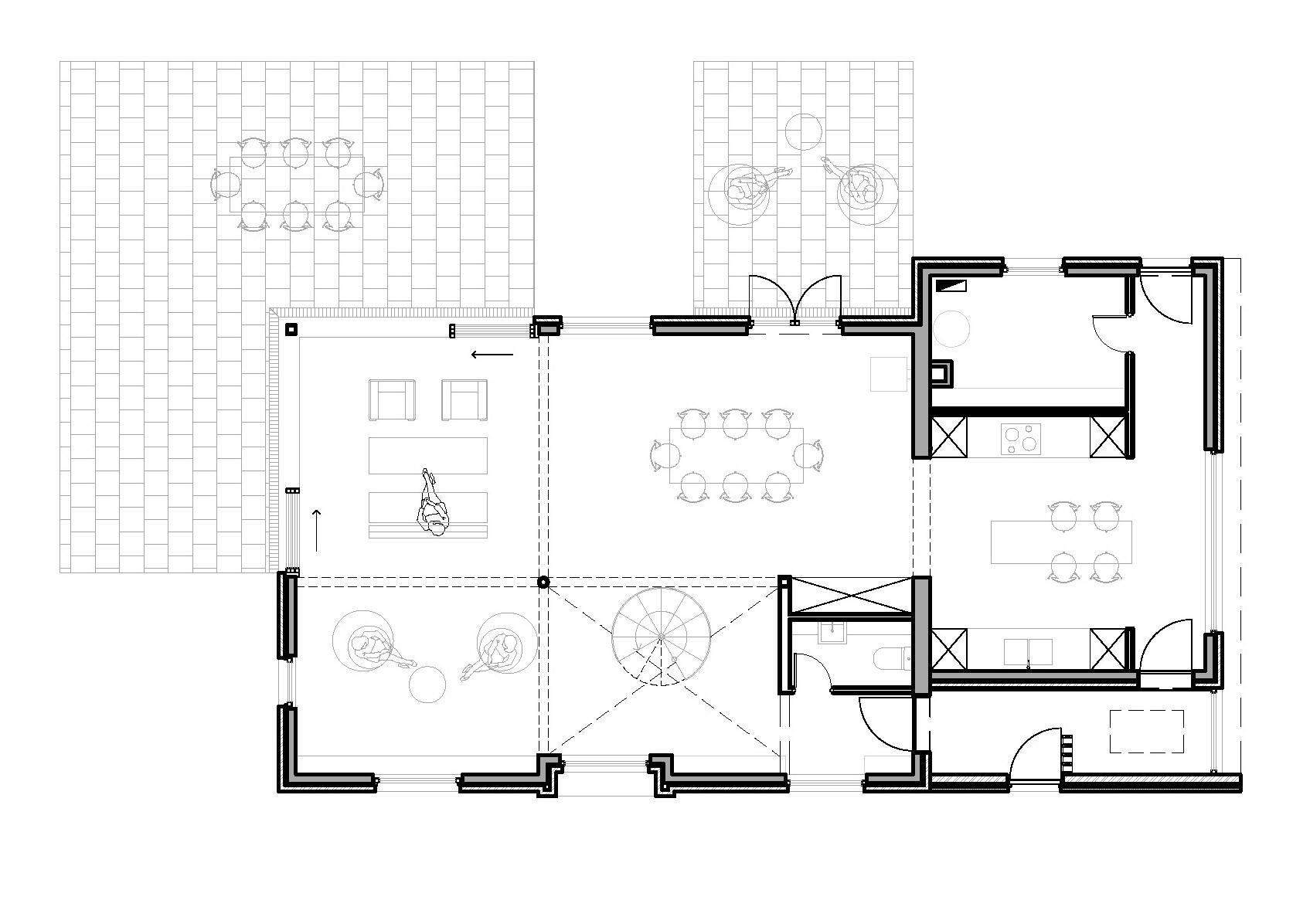
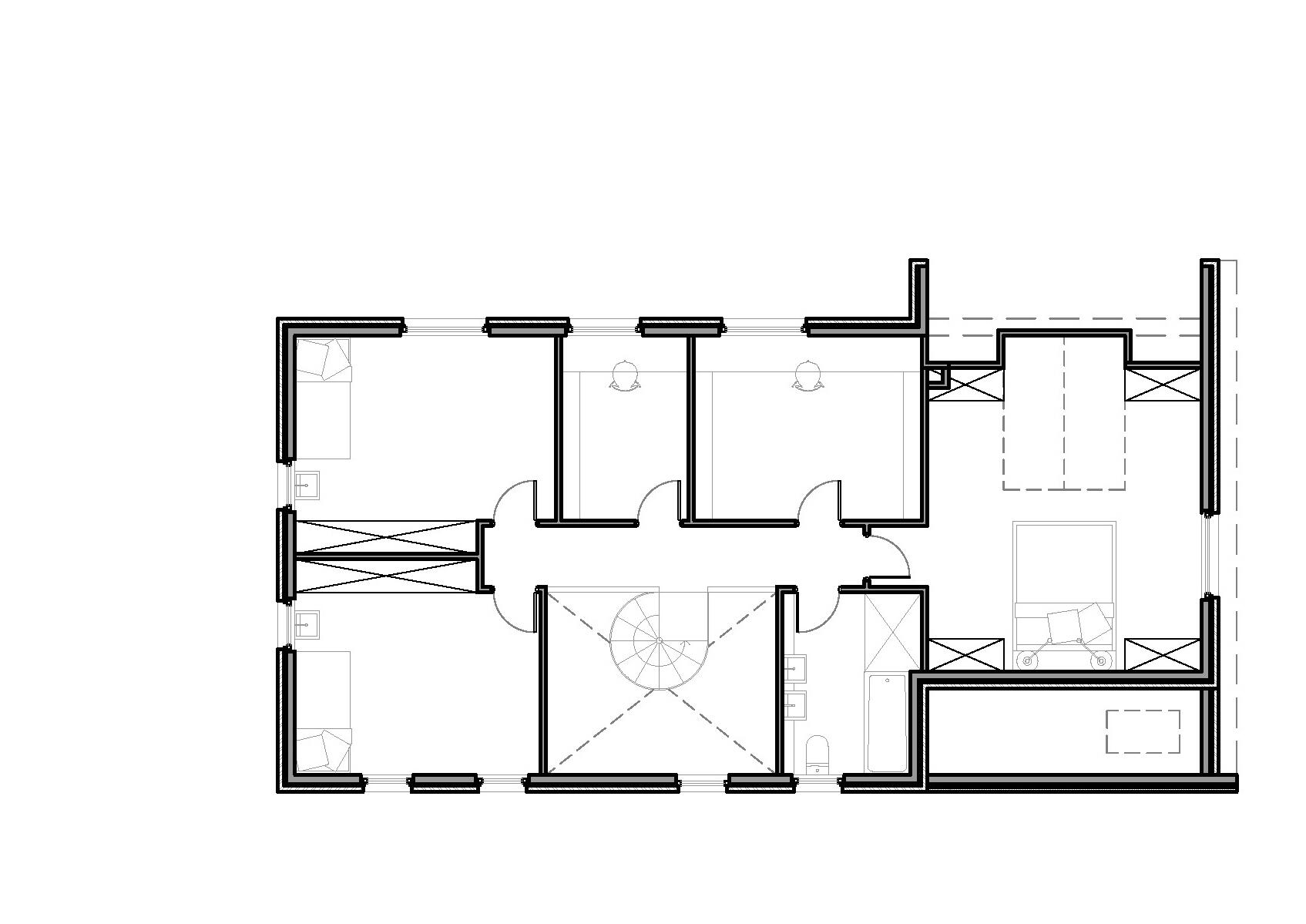
WHAT: Conversion of Kaiwaiwai Hall into a residence. Renovation.
WHERE: Tauwharenīkau, South Wairarapa District (NZ)
TYPE: Residential, Heritage, Renovation
AREA: 250m²
2024 -Ongoing








© 2025 Jean-Yves Dushime
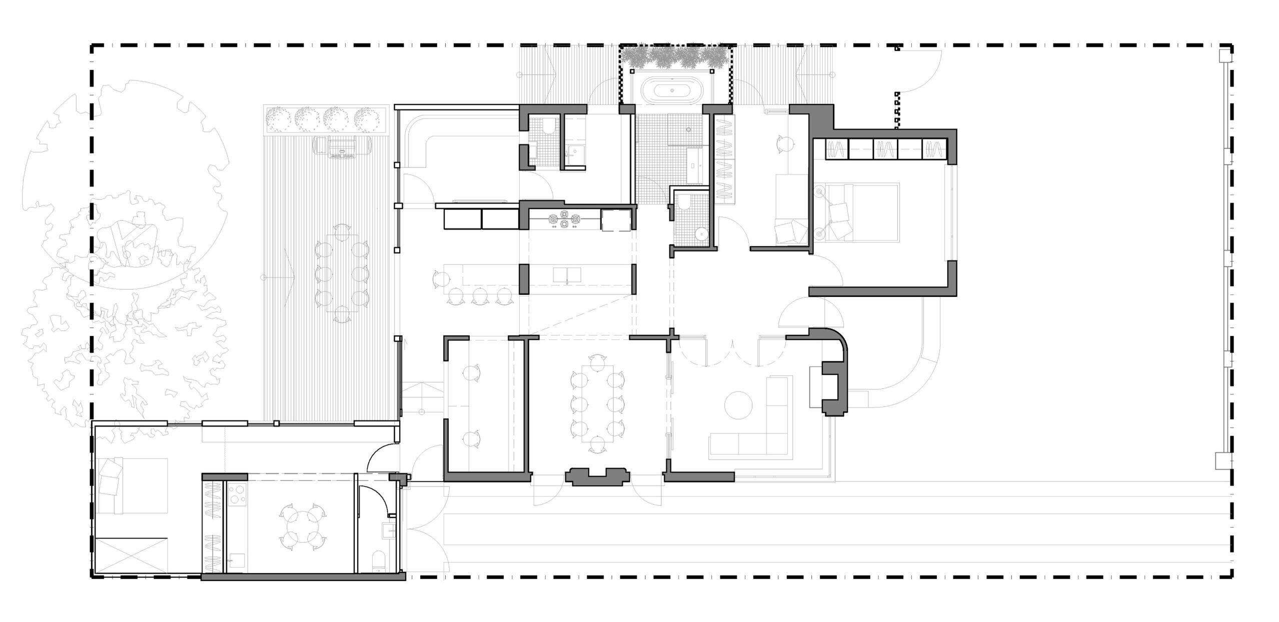
WHAT: Renovation & extension of an art deco home. Renovation.
WHERE: Essendon, Melbourne (AU)
TYPE: Residential, Renovation
AREA: 190m²
2024 -Ongoing






© 2025 Jean-Yves Dushime
WHAT: Existing house relocation & alteration. House transportation & renovation.
WHERE: Pakiri, Rodney District (NZ)
TYPE: Residential, Heritage, Renovation
AREA: 126m²
Under Construction





© 2025 Jean-Yves Dushime
WHAT: Conversion of an airbridge. Renovation.
WHERE: Fitzroy, Melbourne (AU)
TYPE: Renovation, Heritage.
AREA: 15m²
Concept




© 2025 Jean-Yves Dushime
WHAT: New loggia extension to a family home.
WHERE: Coburg, Melbourne (AU)
TYPE: Residential, Outdoor Space
AREA: 28m²
2025 - Ongoing


© 2025 Jean-Yves Dushime
WHAT: New Artists' Studios.
WHERE: Bierges, Wavre (BE)
TYPE: New Built, Workspace, Net Zero Construction
AREA: 200m²
2025 -Ongoing







© 2025 Jean-Yves Dushime
WHAT: Renovation of a 1960s residence into a modern home. Renovation.
WHERE: Bierges, Wavre (BE)
TYPE: Residential, Renovation
AREA: 211m²
Completed








© 2025 Jean-Yves Dushime
OFFICE OF ARCHITECTURE

THE OFFICEFounded in 2024, the office offers architectural services based in clarity, craft and contextual awareness.The work includes new builds, alterations and small commercial projects, with a focus on thoughtful detailing, honest materials and strong spatial logic. Whether working with existing conditions or starting from scratch, the approach is deliberate and responsive — aiming for architecture that is focused, expressive and fluent.Each project begins with listening. Design emerges through dialogue and is shaped by possibilities as much as constraints. The result is architecture that is confident — minimal in gesture, but rich in experience.ABOUT MEJean-Yves Dushime (°1981, Kigali)
ARBV 17757, NZRAB 6723I’m an architect with 20 years of experience working with multi award-winning practices in Melbourne, Antwerp & Wellington.I began my career in Wellington working with the late Ian Athfield on projects like Moore Wilson’s, which received the NZIA Commercial Architecture Award (Wellington). Since then, I’ve collaborated with studios including Nest Architects, Maynard Austin, and B-Architecten, and led civic and public realm projects with Oculus — such as Melbourne Quarter’s Public Square, TRX City Park in Kuala Lumpur, and the Subiaco Oval Pavilion in Perth.
OFFICE OF ARCHITECTURE
TESTIMONIALS'When we bought the house, mainly for its secluded location, we had no real solution for renovating this rather uninviting space: a closed architecture, disconnected, functional but without heart. After unsuccessful attempts with other architects, Jean-Yves came up with completely unexpected proposals that truly transformed the space into a living environment that, almost unconsciously, corresponded to what we wanted: a place in connection with the surrounding nature, with a central area for sharing as much space and time as possible with the family. On top of that, the collaboration was fertile, marked by attentive listening and the thoughtful integration or improvement of our own ideas for recycling and incorporating specific materials and furniture.' Stephan, La Lisière'When we first came to Jean Yves, our house felt very closed off. Surrounded by such a beautiful garden and forest, it seemed a shame not to feel that connection from inside. Jean Yves immediately saw the potential. With his design, he brought the outside in, creating large windows that give us light, views, and a sense of space we never imagined possible. He constantly challenged us to think bigger, to look at our house as a home in dialogue with its surroundings. What we valued most was how he balanced creativity with our needs, always making sure it remained our home. Thanks to him, we now live in a place that feels open, unique, and deeply personal.' Frouke, La Lisiere'Jean Yves has a rare gift for seeing beyond the obvious. He guided us through possibilities we would never have imagined, balancing vision with practicality and always keeping our needs at the heart of the design. His openness to ideas and his ability to shape them into something coherent and inspiring made the process a joy. Every conversation felt like a step closer to creating not just a building, but a place with meaning. We truly couldn’t have done this without his guiding hand.' Ange, The Hall'Jean-Yves knows how to live beautifully. He asks the right questions and truly understands where we are coming from. We're delighted with his vision for our garden lounge. Jean-Yves brings elegance and humour to the conversation.' Joanna, Garden Room'I had been naively cruising house relocation websites when I purchased an old villa online. The moment it landed on our section in Pakiri, we knew we were out of our depth and needed expert help.
Jean-Yves Dushime brought both expertise and passion to our relocated villa project. He took charge of all compliance matters and liaised seamlessly with our builder, making the process smooth and stress-free.
His vision, creativity, and attention to detail transformed the villa into an elegant and superbly functional space. The craftsmanship and care he poured into the project are evident in every beautiful detail.
I wholeheartedly recommend Jean-Yves to anyone seeking architectural excellence.' Alicia, Long Weekend'Working with Jean Yves on the redesign of our home in Essendon was a great experience. From the start, Jean brought so much creativity and fresh thinking to the project, while always keeping true to what we wanted and the character of the house. He has this amazing ability to think outside the box but still respect the original space. In my case, he kept the Art Deco elements that make the house special, but gave it a new life with a subtle, modern touch. The design blurs the line between inside and outside so beautifully — it feels open, calm, and full of light. What we really appreciated was how well Jean Yves listened. He took every idea seriously, but always came back with something even better — thoughtful, clever, and well suited to how we live. He is wonderfully personable and he was a pleasure to deal with. The whole process felt easy and inspiring. I can’t recommend Jean highly enough.' Sapna, Command Centre
OFFICE OF ARCHITECTURE
e: [email protected]
p: +61(0) 466 849 170